1.Product introduction ofsmall automatic weather station
Small automatic weather station is also called automatic small weather station, small weather station. Small automatic weather station is small in size, light in weight, easy to carry and install. It can conduct meteorological observations anytime and anywhere, and can monitor multiple meteorological parameters at the same time, such as temperature, humidity, Air pressure, wind speed, wind direction, precipitation, etc.
The WX-QC12 small automatic weather station is a high-precision meteorological observation equipment that is highly integrated, has low power consumption, can be quickly installed, and is easy to use for field monitoring.
The equipment consists of five parts: meteorological sensor, collector, solar power supply system, pole bracket, and cloud platform.It requires no debugging and can be deployed quickly. It is widely used in meteorology, agriculture, forestry, environmental protection, oceans, airports, ports, scientific expeditions, campus education and other fields.
2. Product features
1. Low-power collector: static power consumption is less than 50uA
2. Standard GPRS networking, support for extended Bluetooth and wired transmission
3. 7-inch Android touch screen, version: 4.4.2, quad-core Cortex?-A7, 512M/4G
4. Support modbus485 sensor expansion
5. Solar charging management MPPT automatic power point tracking
6. Three-meter carbon steel bracket, two-section flange butt joint
7. SMS alarm, send SMS to the designated mobile phone after exceeding the limit
8. ABS material protective box, corrosion-resistant, anti-oxidation, waterproof grade IP66
3. Technical parameters
1) Collector power supply interface: GX-12-3P plug, input voltage 5V, with RS232 output Json data format, collector power supply: DC5V±0.5V peak current 1A,
2) Sensor modbus, 485 interface: GX-12-4P plug, output power supply voltage 12V/1A, equipment configuration interface: GX-12-4P plug, input voltage 5V
3) Solar powered, equipped with lead-acid battery, optional 30W 20AH/50W 40AH/100W 100AH. Charge controller: 150W, MPPT automatic power point tracking, efficiency increased by 20%
4) Data upload interval: adjustable from 1 minute to 1000 minutes
5) 7-inch Android touch screen, screen size: 1024*600 RGB LCD
6) Sensor parameters
1) Wind speed: 0~30m/s (±0.1m/s);
2) Wind direction: 0~360° (less than 3°, >1m/s);
3) Air temperature: -40℃~85℃ (±0.3℃);
4) Air humidity: 0~100%RH (±3%RH);
5) Atmospheric pressure: 300hPa~1100hPa (±0.25%);
6) PM2.5: 0-1000ug/m3 (±10%)
7) PM10: 0-1000ug/m3 (±10%)
8) Rainfall: ≦4mm/min (±0.2mm);
9) Carbon monoxide: 0-1000ppm (±2PPM)
10) Sulfur dioxide: 0-20PPM (±1PPM)
11) Nitrogen dioxide: 0-20PPM (±1PPM)
12) Ozone: 0-20PPM (±1PPM)
8) The production enterprise has ISO quality management system, environmental management system and occupational health management system certification. 7) The complete machine has obtained the calibration certificate of the National Meteorological Station.
9) The production enterprise has an intellectual property management system certification certificate and a computer software registration certificate
10) The production enterprise is a 3A credit enterprise
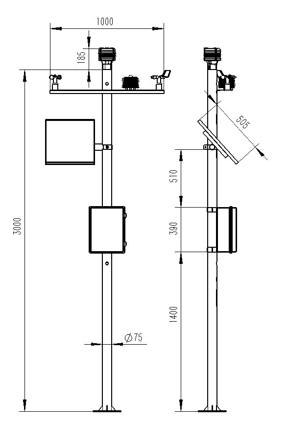
4. Product size chart

5. Product Structure Chart
6. Introduction to PC software
1. PC stand-alone version of data receiving, storage, viewing and analysis software
2. Support serial port data reception, processing and display
3. Support json string, modbus485 and other communication methods
4. The storage time can be set by oneself, and the collection time can be set by oneself in the modbus485 collection mode.
5. Support self-service adding, deleting, and modifying protocols, names, icons, etc. of monitoring parameters.
6. Support data post-processing function
7. Support external running of javascript scripts
7. Introduction to Android APP
1. Android stand-alone version of data receiving, storage, viewing and analysis software
2. Support Bluetooth data reception
3. After the mobile phone is asleep, the software receives and processes it in the background
4. JSON data automatically adds devices, and modbus devices support scanning QR codes to add devices.
5. Supports historical data viewing, analysis, and table export, and supports curve display and single data point viewing.
6. Support data post-processing function
7. Support external running of javascript scripts
8. Introduction to cloud platform
1. CS architecture software platform supports direct observation on mobile phones and PC browsers without the need to install additional software.
2. Support multiple accounts and multiple devices to log in
3. Support real-time data display and historical data display dashboard
4. Cloud servers and cloud data storage are stable and reliable, easy to expand, and load balanced.
5. Support SMS alarm and threshold setting
6. Support map display and view device information.
7. Support data curve analysis
8. Support data export table format
9. Support data forwarding, HJ-212 protocol, TCP forwarding, http protocol, etc.
10. Support data post-processing function
11. Support external running of javascript scripts
Product address:
http://www.08mx.com/en/xiaoxing/892.html